4月10日,由中国石化四建工程项目管理团队参与管理的中科炼化一体化空分装置,经项目十分部、工程监理、宁波工程公司、起运公司
气体分离4月10日,从开封空分集团有限公司获悉,其承揽的陕鼓动力出口印尼342000Nm³/h空分第二套装置开始发货。本次发货的
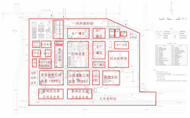
日前,中国石油兰州石化长庆乙烷制乙烯项目获陕西省环评批复,为该项目依法合规开工建设奠定坚实基础。我国富含页岩气资源,页岩
近日,徐州秦风气体二期20000Nm³/h空分装置成功投产,向客户输送合格的氧气、氮气产品,并顺利通过用户的严格考核。
气品网